Ga naar inhoud

Te koop: woonhuis Rozenbottel 3 7559 RG Hengelo

Verkocht

€ 460.000,- k.k.

Rozenbottel 3 te Hengelo (O)

Wilt u comfortabel wonen in de geliefde woonwijk ‘Dalmeden’, nabij het winkelcentrum ‘Hasseler Es’ en ‘Slangenbeek’, het centrum van Hengelo, Borne, Deurningen en diverse uitvalswegen richting de A1, in een ruime en instapklare tussenwoning? Dan is dit uw kans om te wonen in een prachtig huis op een toplocatie!

Deze woning biedt een royale, tuingerichte woonkamer van 34 m², maar liefst ZES slaapkamers, een stijlvolle badkamer en een sfeervolle open keuken met kookeiland. Daarnaast beschikt u over parkeergelegenheid op eigen terrein met carport, een zonnige achtertuin met afsluitbare poort en een houten berging.

Ervaar zelf de ruimte, locatie en sfeer van deze optimaal geïsoleerde woning en plan vrijblijvend een bezichtiging met onze makelaar!

Indeling:
Begane grond:
Entree/hal met meterkast, toilet met fontein, trapopgang naar de eerste verdieping met daaronder een bergkast, woonkeuken en de woonkamer.

Vanuit de hal komt u in de open keuken. Hier zien we een uiterst courante inbouwkeuken in lichte kleurstelling met de navolgende inbouwapparatuur: 4-pits inductie kookplaat, RVS afzuigkap, koel-vriescombinatie, vaatwasser en een oven. De keuken is verder uitgevoerd met een kunststof aanrechtblad waarin verwerkt een enkele RVS spoelbak.

De tuin gerichte woonkamer meet een oppervlakte van 34 m² en is heerlijk licht door het vele glas in de achtergevel. De vloer is voorzien van PVC. De schuifpui in de achtergevel zorgt ervoor dat u zowel in het voor- als najaar optimaal kunt genieten van de achtergelegen tuin.

Eerste verdieping:
Overloop met een drietal slaapkamers en de badkamer. De slaapkamers meten oppervlaktes van ruim 14, 12 en 7 m² en zijn allen voorzien van een PVC vloer en draai-/kiepramen. Daarnaast hebben de ouderslaapkamer en de kleinste kamer de beschikking over vaste kasten.

De courante badkamer is geheel betegeld en uitgevoerd in moderne kleurstelling. Als bewoner beschikt u over een dubbel wastafelmeubel, hangend toilet, inloopdouche en een designradiator. Ventilatie geschiedt op zowel mechanische als natuurlijke wijze.

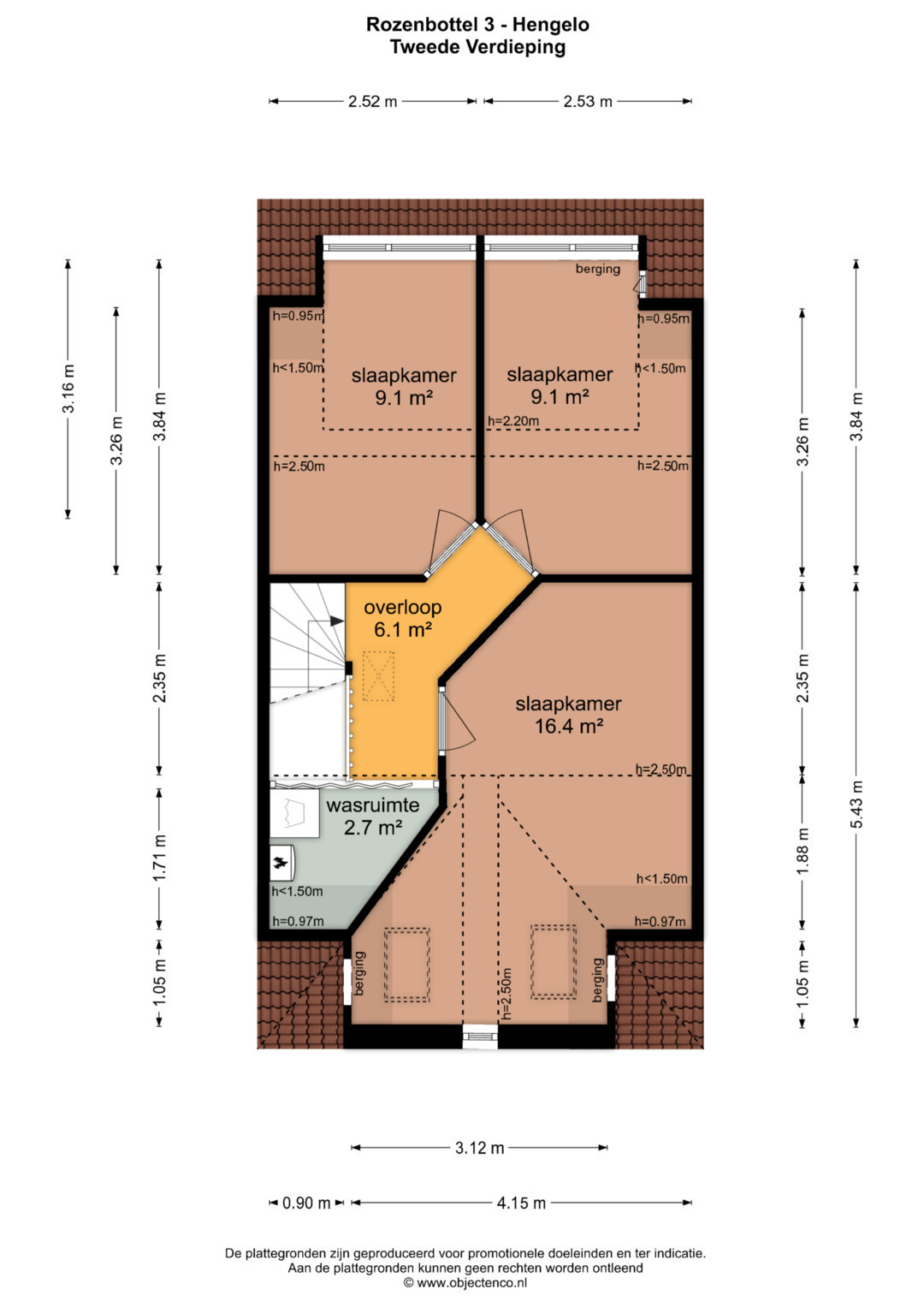
Tweede verdieping:
Middels een vaste trap is de tweede verdieping (voorzien van airco installatie) te bereiken met een ruime 4e, 5e en 6e slaapkamer. De slaapkamers aan de achterzijde zijn voorzien van een dakkapel en de slaapkamer aan de voorzijde van twee dakvensters en een draai-/kiepraam.

Op deze verdieping bevindt zich tevens de wasruimte met aansluitingen voor de wasmachine en droger, evenals de opstelplaats voor de cv-ketel.

Via een vlizo trap is er toegang tot de vliering/bergzolder. Deze biedt u als bewoner volop bergruimte. Daarnaast kunt u ook voldoende opbergen achter de knieschotten.

Tuin en houten berging:
De tuin is gelegen op het zuidoosten en verzorgd aangelegd met bestrating, gazon en borders met beplanting. Achter in de tuin bevindt zich de overkapping/carport met aangelegen houten berging van 6 m² met elektra aansluiting.

Parkeren:
U heeft de beschikking over een eigen carport. Tevens zijn er voldoende openbare en gratis parkeermogelijkheden aan de achterzijde van de woning.

Overige bijzonderheden:
Het woonhuis is gebouwd omstreeks 2015. De perceeloppervlakte bedraagt 132 m², het gebruiksoppervlak wonen 148 m² en de inhoud van het woonhuis ligt rond de 528 m³. De centrale verwarming en warmwatervoorziening geschieden door middel van een Intergas CV-ketel van het bouwjaar 2015 (eigendom). De woning heeft energielabel A+ en is voorzien van dak-, muur, vloerisolatie, HR++ glas, 9 zonnepanelen in eigendom en een airco installatie. Het voorgelegen plein heeft 2 jaar geleden de NPO serie “12 Straten Groen” gewonnen, wat heeft geleid tot de vergroening ervan.

”Interesse in dit huis? Schakel direct uw eigen NVM- aankoopmakelaar in. Uw NVM- aankoop makelaar komt op voor uw belang en bespaart u tijd, geld en zorgen.
Adressen van collega NVM- aankoopmakelaars in Twente vindt u op nvmtwente.nl”

In de koopakte zal een deponering van 10 % waarborgsom of bankgarantie door de koper worden opgenomen.

  • 148 m2
  • 132 m2
  • 6

Kenmerken Rozenbottel 3

Overdracht

Vraagprijs€ 460.000,- k.k.
AanvaardingIn overleg

Oppervlaktes en inhoud

Perceel oppervlakte132 m2
Woonoppervlakte148 m2
Inhoud528 m3

Bouw

SoortEengezinswoning
BouwvormBestaande bouw
Bouwjaar2015
Dak typeSamengesteld dak
IsolatievormenDakisolatie, Muurisolatie, Vloerisolatie, Volledig geïsoleerd, HR glas
EnergielabelA+

Indeling

Aantal verdiepingen4
Aantal kamers7
Aantal slaapkamers6
Aantal badkamers1

Kenmerken van verkoper en vrienden

Zelf toevoegen

Ken jij dit huis of deze buurt? Voeg dan in een paar stappen jouw eigen ervaring toe.

Maandlasten

Ligging Rozenbottel 3

Voorzieningen

Centraal gelegen informatie over de buurt

Aantal inwoners

In de gemeente

80.802

Leeftijd

in percentages van totaal

Huishoudsamenstelling

in percentages van totaal

14%

20% NL

30%

20% NL

56%

20% NL

Vergelijkbaar woningaanbod